| Автор |
Сообщение |
|
pink_ice_cream
|
Заголовок сообщения: Re: Что день грядущий нам готовит - опять про Фен Шуй! Добавлено: 20 ноя 2011, 14:52 |
|
 |
| Богиня |
 |
|
|
Зарегистрирован: 23 июн 2007, 11:20 Сообщения: 455
|
|
 |
|
 |
|
Silver Bullet
|
Заголовок сообщения: Re: Что день грядущий нам готовит - опять про Фен Шуй! Добавлено: 20 ноя 2011, 17:51 |
|
Зарегистрирован: 30 авг 2008, 19:46 Сообщения: 7717 Откуда: A.K.A. Черри Три
|
|
ой, я не могу разобрать где входная дверь у вас. Куда смотрит? Направление это градус который показывает компас на двери. Помните про азимуты в школе? Вот если от двери провести перпендикулярную линию на улицу и измерить ее азимут - это и будет facing. Мерить же надо на улице тоже. Посмотрите в книжке что я ссылку дала. Там очень все хорошо написано.
Я вам завтра наложу сетку, а то мне неудобно на нет-буке с графикой работать.
|
|
 |
|
 |
|
pink_ice_cream
|
Заголовок сообщения: Re: Что день грядущий нам готовит - опять про Фен Шуй! Добавлено: 20 ноя 2011, 22:14 |
|
 |
| Богиня |
 |
|
|
Зарегистрирован: 23 июн 2007, 11:20 Сообщения: 455
|
Пулечка, спасибо большущее!!! Со мной можно на ты. Ту книжку, что вы дали начала читать, еше не добралась до этого места. Дверь у меня на первом этаже, где патио написанo "entry". 
|
|
 |
|
 |
|
Precious
|
Заголовок сообщения: Re: Что день грядущий нам готовит - опять про Фен Шуй! Добавлено: 20 ноя 2011, 22:52 |
|
Зарегистрирован: 09 окт 2005, 17:46 Сообщения: 2552 Откуда: Та же Л., вид в профиль ;-)
|
|
a
_________________ Сдержал слово - молодец А ведь могло и вырваться Если вы спорите с идиотом, подумайте, быть может он делает то же самое
|
|
 |
|
 |
|
Silver Bullet
|
Заголовок сообщения: Re: Что день грядущий нам готовит - опять про Фен Шуй! Добавлено: 21 ноя 2011, 06:40 |
|
Зарегистрирован: 30 авг 2008, 19:46 Сообщения: 7717 Откуда: A.K.A. Черри Три
|
Да, цветки придется убрать. Пальмы не надо, наоборот хорошо - они же не цветут. Можно венок теперь повесить просто из листьев без цветов. Я видела очень красивые, типа из листьев магнолии. Обычно звезда романтики хорошо, но если слишком активная то появится желание гульнуть на стороне. Есть еще цветок романтики (звезда) по ба-цзы. Это тоже коварная штука. В доме ее надо искать по плану 24 горы и смотреть чтоб не дай бог там не было душа, крана, фонтана, букета в вазе - это если вы замужем. А то романтика ударяет в голову со страшной силой и потом появляются темы - я замужем, умираю от любви к другому...  ...или муж гуляет. Я потом расскажу как это дело найти и обезвредить.. "Самостоятельным" надо будет делать наоборот...
|
|
 |
|
 |
|
Silver Bullet
|
Заголовок сообщения: Re: Что день грядущий нам готовит - опять про Фен Шуй! Добавлено: 21 ноя 2011, 13:17 |
|
Зарегистрирован: 30 авг 2008, 19:46 Сообщения: 7717 Откуда: A.K.A. Черри Три
|
 Вот так звезды расселятся. Надо теперь в формулу ввести измерения, получить квадрат с цифрами, его наложить и вписать. Не все дворцы присутствуют. В спальне будут только звезды двора 4, в ванной только дворца 3, на кухне только дворца 8, в ландри рум только ценрального дворца, в гостиной только 6 дворца, в столовой только 1 дворца и на лестнице 2-го этажа - дворца 7. То что звезды центрального дворца заперты в ландри\кладовке, не есть хорошо (если только это не 2-5). Вам бы конечно померять точно при такой квартире надо было б.
|
|
 |
|
 |
|
F46
|
Заголовок сообщения: Re: Что день грядущий нам готовит - опять про Фен Шуй! Добавлено: 21 ноя 2011, 13:41 |
|
Зарегистрирован: 15 ноя 2007, 07:33 Сообщения: 656 Откуда: Msc,RF-USA
|
Пулечка, а как ты накладываешь сетку на план? Есть специальная программа? (прости тупую  )
|
|
 |
|
 |
|
F46
|
Заголовок сообщения: Re: Что день грядущий нам готовит - опять про Фен Шуй! Добавлено: 21 ноя 2011, 13:42 |
|
Зарегистрирован: 15 ноя 2007, 07:33 Сообщения: 656 Откуда: Msc,RF-USA
|
|
Ещё хотела спросить. Мне тут сказали, что надо в доме иметь кристалл аметиста для привлечения денег. Это так и есть?
|
|
 |
|
 |
|
Silver Bullet
|
Заголовок сообщения: Re: Что день грядущий нам готовит - опять про Фен Шуй! Добавлено: 21 ноя 2011, 14:01 |
|
Зарегистрирован: 30 авг 2008, 19:46 Сообщения: 7717 Откуда: A.K.A. Черри Три
|
|
Сетку расчетртила в Microsoft Paint. Он в каждом виндовс есть. Не знаю что в Эппл, но должно быть похожее что то.
За аметист пишет Лилиан Ту. Вроде его толи под кровать, то ли в ногах кровати. Честно говоря не знаю - это больше на талисман похоже, а не на средство ФШ. Обычно ср-ва ФШ рассчитываются исходя из каких то параметров: место, время, взаимодействие стихий. Его в сектор с приходящей 6-кой может поставить - он тогда будет ее поддерживать. Талисманы это из другой серии - типа как карта сокровищ. Для самооубеждения. Попробуйте, может будет действовать.
|
|
 |
|
 |
|
Silver Bullet
|
Заголовок сообщения: Re: Что день грядущий нам готовит - опять про Фен Шуй! Добавлено: 21 ноя 2011, 14:16 |
|
Зарегистрирован: 30 авг 2008, 19:46 Сообщения: 7717 Откуда: A.K.A. Черри Три
|
|
Ну что, все интересующиеся планы начертили, померяли и звезды расписали?
Давайте чертите, а я расскажу как наложить план 24 горы и найти влияния в секторах. Звезды расселяются у нас в комнатах, а из секторов приходят всякие влияния.
|
|
 |
|
 |
|
F46
|
Заголовок сообщения: Re: Что день грядущий нам готовит - опять про Фен Шуй! Добавлено: 21 ноя 2011, 14:41 |
|
Зарегистрирован: 15 ноя 2007, 07:33 Сообщения: 656 Откуда: Msc,RF-USA
|
|
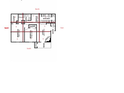
вот что у меня получилось, если я всё правильно поняла
| Вложения: |

plan_fsh.jpg [ 414.17 КБ | Просмотров: 1242 ]
|
|
|
 |
|
 |
|
pink_ice_cream
|
Заголовок сообщения: Re: Что день грядущий нам готовит - опять про Фен Шуй! Добавлено: 21 ноя 2011, 16:41 |
|
 |
| Богиня |
 |
|
|
Зарегистрирован: 23 июн 2007, 11:20 Сообщения: 455
|
Пулечка, бесконечно благодарна!!! 
|
|
 |
|
 |
|
Silver Bullet
|
Заголовок сообщения: Re: Что день грядущий нам готовит - опять про Фен Шуй! Добавлено: 21 ноя 2011, 17:51 |
|
Зарегистрирован: 30 авг 2008, 19:46 Сообщения: 7717 Откуда: A.K.A. Черри Три
|
F46 писал(а): вот что у меня получилось, если я всё правильно поняла 8 в клозете  , в спальне - 4, во второй спальне 2, в ливинг рум 6 ( годовая пятерка выходит из игры). Посмотрела еще раз...  ....5 вообще то на Юго_востоке - как раз в ливинг рум! Поменять надо номера звезд - попереставляйте в ваши квадратики номера согласно сторонам света. Летящие Звёзды года Ю/В -5 Ю - 1 Ю/З - 3 В - 4 Center - 6 З -8 С/В - 9 С -2 С/З -7 Жалко 8-ка у вас вылетает из игры....и 4
|
|
 |
|
 |
|
F46
|
Заголовок сообщения: Re: Что день грядущий нам готовит - опять про Фен Шуй! Добавлено: 21 ноя 2011, 21:18 |
|
Зарегистрирован: 15 ноя 2007, 07:33 Сообщения: 656 Откуда: Msc,RF-USA
|
Пулечка, Нижайший поклон и благодарности!!! Те номера звёзд я ставила в соответствии с годом постройки и ориентацией по сторонам света. Получается, что годовые звёзды вытесняют некоторые из уже имеющихся базовых, так сказать? И Центр квартиры у меня тоже почти что в шкафу:(((((((((( Мдааа, у меня в гостиной 5-ка!!! да, ещё прям в юго-восточном углу камин  :(( Камин "заколачиваем" на весь год, ставлю вазу с солёной водой и 8-ю медными и одной серебряной монетками для нейтрализации. В гостиной же есть ещё телевизор - источник шума?! Меня и так муж высмеивает, но днём его дома нет, а как придумать, чтобы вечером он в гостиной телевизор не смотрел! Правильно ли я поняла, что в крайней спальне 3-ка вытеснила 8-ку базовую, на кухне 9-ка поселится (ничего, что там огонь и всё такое?) Хехх.... надо закупать бамбук Простите, если что не так поняла (я тупооой тормоз)
| Вложения: |

plan_fsh.jpg [ 333.04 КБ | Просмотров: 1214 ]
|
|
|
 |
|
 |
|
F46
|
Заголовок сообщения: Re: Что день грядущий нам готовит - опять про Фен Шуй! Добавлено: 21 ноя 2011, 21:20 |
|
Зарегистрирован: 15 ноя 2007, 07:33 Сообщения: 656 Откуда: Msc,RF-USA
|
Precious, Вот это подготовка!!! 
|
|
 |
|
 |
|